Corimo conseil immobilier
05 62 47 03 94
7 avenue Jean Rieux - 31500 Toulouse

Toulouse centre - 31000- Haut Jean-Jaurès - Studio rénové de 28m²

< Retour
  • Loyer
  • 670 € CC*
gallery loader

Appartements 28 m² - 1 pièce - Toulouse (31000)

Ref 4428
Partager cette offre
+1
Description de l'offre

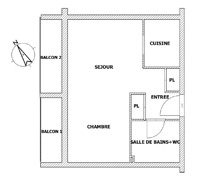
réf 4428 - Haut des allées Jean-Jaurès - Dans résidence de standing - Appartement de type1 ( 28 m²) situé au 1er etage. Il se compose d'une entrée avec placard, une pièce principale très lumineuse avec 2 balcons avec kitchenette, une salle de bains avec WC. Chauffage au gaz collectif. Possibilité de louer une place de parking en sous-sol en supplément (80 euros/mois).  Disponible au 01 Décembre. Loyer CC: 670 euros (520 euros/mois hors charges + Provisons charges : 150 euros/mois) - Dépôt de garantie : 520 euros - Honoraires : 364 euros ( dont 84 euros pour état des lieux)

Diagnostics de performance énergétique
DPE
DPE

Montant estimé des dépenses annuelles d'énergie pour un usage standard est compris entre 460 € et 670 € . Prix moyens des énergies indexés sur les années 2021, 2022 et 2023 (abonnements compris).

Descriptif du bien

Code postal 31000


Surface habitable (m²) 28 m²


Surface loi Boutin (m²) 28 m²


Nombre de pièces 1


Meublé NON


Etage 1


Ascenseur OUI


Nb de salle de bains 1


Cuisine KITCHENETTE


Type de cuisine SEMI-EQUIPEE


Mode de chauffage Gaz


Type de chauffage Radiateur


Format de chauffage Collectif


Interphone OUI


Visiophone NON


Balcon OUI


Cave NON


Quartier Jean Jaures, Médiathèque


Loyer CC* / mois 670 €


Honoraires TTC charge locataire 364 €


Dont état des lieux 84 €


Dépôt de garantie TTC 520 €


Charges locatives (Previsionnelles mensuelles les avec regularisation annuelle) 150 €


Cette annonce vous intéresse ?
* Champs obligatoires

* : Les informations recueillies sur ce formulaire sont enregistrées dans un fichier informatisé par La Boite Immo agissant comme Sous-traitant du traitement pour la gestion de la clientèle/prospects de l'Agence / du Réseau qui reste Responsable du Traitement de vos Données personnelles.
La base légale du traitement repose sur l’intérêt légitime de l'Agence / du Réseau.
Elles sont conservées jusqu'à demande de suppression et sont destinées à l'Agence / au Réseau.
Conformément à la loi « informatique et libertés », vous pouvez exercer votre droit d'accès aux données vous concernant et les faire rectifier en contactant l'Agence / le Réseau.
Si vous estimez, après avoir contacté l'Agence / le Réseau, que vos droits « Informatique et Libertés » ne sont pas respectés, vous pouvez adresser une réclamation à la CNIL.
Nous vous informons de l’existence de la liste d'opposition au démarchage téléphonique « Bloctel », sur laquelle vous pouvez vous inscrire ici : https://www.bloctel.gouv.fr 
Dans le cadre de la protection des Données personnelles, nous vous invitons à ne pas inscrire de Données sensibles dans le champ de saisie libre
Ce site est protégé par reCAPTCHA, les Politiques de Confidentialité et les Conditions d'Utilisation de Google s'appliquent.

autres annonces immobilières correspondant à votre recherche

Les biens similaires pour : Location Appartements Toulouse (31000)

* CC : Charges comprises

Alerte mail

Voir +

Créez votre propre alerte e-mail personnalisée.

Estimation

Voir +

Faites estimer votre bien par notre service.

Contact

Voir +

Contactez notre agence sans plus attendre.